DEMS 400

Çalışma Limitleri
Basınç: ≤2.5MPa
Hız: ≤16m/s
Sıcaklık: -40˚C~+220˚C

Döner Yüzey (SiC/TC)
Sabit Elemanlar (SiC/Carbon/TC)
Elastomer (VITON/AFLAS/Kalrez)
Diğer Parçalar(C-276/Duplex/316)

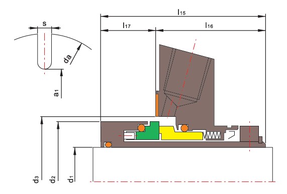
  • Teknik Resim
DEMS 400
  • Teknik Özellikler
DEMS 400